Răzvan Retezeanu, șeful Direcției Urbanism a Primăriei Târgu Jiu, a fost reținut de poliție, dosarul fiind sub supravegherea unui procuror al PT Gorj, în urmă cu o săptămână, pentru abuz în serviciu. Asta, după ce a fost chemat la IPJ Gorj, la finalizarea orelor de program, și anchetat de cunoscutul și controversatul polițist de la SICE, Nedelea Nelu Adrian. Spunem controversat, deoarece Gorjeanul a relatat în mai multe rânduri că respectivul ofițer al IPJ Gorj a fost implicat în anchetarea mai multor dosare penale care au fost clasate, în final, de procurori, demonstrând un exces de zel interesat al anchetatorului dar și multe elemente ce au dovedit neprofesionalismul respectivului și chiar reaua-credință în găsirea dovezilor incriminatorii la adresa celor vizați. Cazul ,,Retezeanu”, privit dintr-un alt unghi, pare că se încadrează în genul de anchete în care Nedelea se implică „personal”, mai ales că deține o proprietate cu cântec în Târgu Jiu care s-ar fi lovit, culmea, tocmai de ,,clientul” pe care l-a plimbat marțea trecută, cu cătușe, pe la Parchetul Județean Gorj. Dacă este așa sau nu, vă lăsăm pe dumneavoastră să trageți concluziile. Nu înainte de a menționa că dosarul în care este urmărit penal Retezeanu nu s-a finalizat, în aceste zile fiind audiate și alte persoane publice cu greutate de la nivelul municipiului.
Cazul ,,Retezeanu” pare, la prima vedere, unul clasic de abuz în serviciu în care un funcționar, cu funcție în această speță, trage ilegal spuza pe turta unei persoane de care îl leagă diverse interese personale ori interesele unui grup.
În cuprinsul acestui material de presă nu avem intenția să întoarcem pe dos această anchetă care se afla în derulare, ci doar să ne răspundem la niște întrebări firești legate de
implicarea personală sau doar profesională a polițistului de caz, care, deloc surprinzător, se lovește, cu o construcție pe care nu o declară, de șeful de la Urbanism.
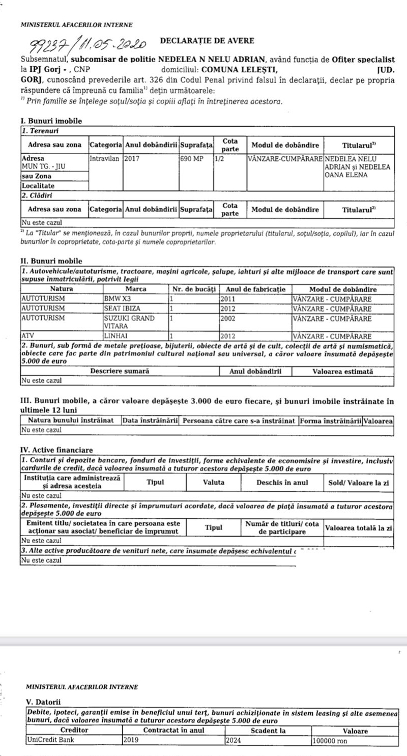
Vila, gata din 2019, nu apare în nicio declarație de avere a polițistului Nedelea!
Dar să o luăm cu începutul.. Soții Adrian și Oana Nedelea achiziționează în anul 2017 un
teren in Târgu Jiu, pe strada Costache Negruzzi. Este vorba despre 690 de mp, proprietate care este declarată de către polițist, oficial, în 2018 în declarația sa de avere. În același an
2018, Oana Nedelea, soția polițistului, solicită și primește autorizație de construcție, de la Primăria Târgu Jiu, pentru casa cu parter și mansardă, plus garaj și împrejmuire parțială.
Autorizația este dată pe 12 luni. Locuința este finalizată, în timpul respectiv, iar, în 2019, soția ofițerului obține deja autorizație și pentru branșamentul electric. Practic, construcția este gata de atunci, dar nici în 2020 nu apare în declarația de avere a proprietarului.
Interesant este că nici în ultima declarație de avere a lui Nedelea, din 2022, locuința nu este declarată, asta pentru că, se pare, proprietarii nu pot demonstra că au avut banii necesari pentru realizarea acestei investiții.
De unde banii pentru vilă?!
Mai exact, se trage concluzia că recepția finală a lucrării nu s-a făcut din două motive rezonabile: fie polițistul nu poate să justifice banii pentru că a băgat în teren, casă și gard, peste 300.000 euro, și al doilea motiv este că nu a respectat proiectul. Prima ipoteză este
plauzibilă daca dăm un ochi în declarațiile de avere ale ofițerului Nedelea care vrea să ne arate că a împrumutat 100.000 de lei pentru locuință, credit care expira în 2024, anterior
împrumutând și soția, de la bancă, 44.000 de lei. Împrumuturile sunt mici în raport cu casa, asta la doar un ochi tras, de peste gard, locuinței de pe strada Negruzzi.
Nedelea se sustrage de la plata impozitului!
Revenim: vila din Târgu Jiu a familiei Nedelea este gata în 2019, fiind, de câțiva ani, locuită. Cu toate acestea, nu apare în declarația de avere a polițistului care, astfel, se sustrage de la plata impozitului anual pe această clădire. Aici intră în scenă Retezeanu,
șeful de la Urbanism, căruia i se aduce la semnat o recepție neconformă, spun surse din instituție. Retezeanu ar fi refuzat documentele, fapt care i-ar fi adus cadou o pereche de cătușe de la proprietarul care, coincidență, avea la sertar un dosar penal pentru angajatul Primăriei Târgu Jiu. Dumneavoastră sunteți însă cei care puteți cântări dacă o semnătură poate să aducă o pereche de cătușe, dacă solicitantul este polițist.
Mașina lui Nedelea, parcată numai în fața Primăriei Târgu-Jiu
Legat de proprietatea valoroasă este interesant pentru ANI, de exemplu, cu ce bani a ridicat familia Nedelea proprietatea chiar dacă soacra polițistului, aflată la munca în Italia, îi virează ginerelui niste sume de bani. Acestea nu acoperă nici măcar cele două autoturisme ale familiei Nedelea, darămite vila din Negruzzi.
Subliniem că atât soacra cât și tatăl polițistului oferă celor doi soți ,,sprijin financiar părintesc”, în valoare de 13.650 de euro, respectiv 10.000 de euro, potrivit declarației de avere din vara lui 2022.
Nedelea mai declară niste cadouri primite din Italia și salariul soției, de director vânzări la o bancă din Târgu-Jiu. Cele două salarii, cadourile și sprijinul părintesc nu explică însă valoarea clădirii cu mansardă a familiei Nedelea, spun cunoscătorii în ale construcțiilor.
ANAMARIA STOICA





























